

1.ZJ型渣漿泵的結構特征(見圖1)
(1)泵頭部分
ZJ型渣漿泵的泵頭部分包括泵殼、葉輪和軸封裝置。泵頭與托架用螺栓聯結。根據需要,泵的出水口位置可按45°間隔旋轉八個不同的角度安裝使用。
ZJ型渣漿泵的泵殼為雙層殼體結構。外層為金屬泵殼(前泵殼、後泵殼),其材料通常為HT200或QT500-7;内層殼體可用高鉻合金鑄鐵制做(包括渦殼、前護闆、後😵💫護🧑🏾🎄闆),或用橡膠制作(包括前渦殼、後渦殼)。
葉輪由前蓋闆、後蓋闆、葉片、背葉片構成。葉片為扭曲葉片🤶🏾,通👌常有3-6枚。背葉片分布在前蓋闆和後蓋闆的外側,通常為8枚。葉輪的材質為高鉻合金鑄鐵,葉輪與軸為螺紋聯結。
軸封裝置有副葉輪+填料組合密封、填料密封、機械密🙉封💁🏼♀️三種型式,
副葉輪+填料組合密封型式:由填料箱、副葉輪、水封環、填料、填料壓蓋、軸套組成。
對于串聯泵,除首級外,其餘各級泵可不安裝副葉輪,用副葉輪間隔套代替。
機械密封型式由機封箱、間隔套、機械密封、壓蓋等🔞組🙉成,
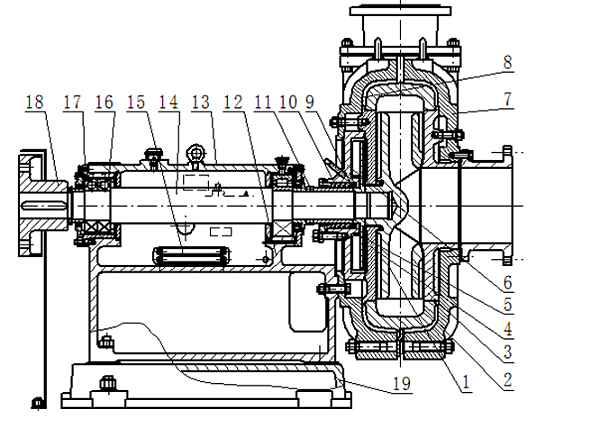
ZJ型雙殼體渣漿泵結構圖

1、葉輪 2、蝸殼 3、前護闆 4、後護闆 5、副葉輪 6、填料箱 7、前泵殼 8、後泵殼
9、水封環 10、填料 11、拆卸環 12、托架體 13、托架蓋 14、泵軸 15、冷卻器
16、軸承箱 17、調節螺釘 18、聯軸器 19、底座
